| Loại công trình | : Nhà truyền thống (Kyomachiya) | 
| Quy mô | :120m2 | 
| Loại kết cấu | : Gỗ | 
| Nội dung | :Từ PointCloud tạo thành model và bản vẽ | 
| Mức độ chi tiết | : LOD250 | 
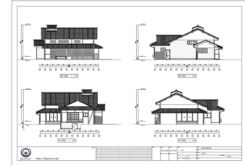
Chúng tôi đã thực hiện số hóa Bảo tàng Bảo tồn cảnh quan thị trấn Sagatori của Thành phố Kyoto.
Từ vấn đề “là một công trình cũ không có sẵn bản vẽ sẽ rất khó để khôi phục trong trường hợp khẩn cấp”, chúng tôi đã thực hiện quét 3D và chuyển đổi tòa nhà thành dữ liệu bản vẽ bằng mô hình BIM. Bằng cách chuyển đổi nguyên hiện trạng thành dữ liệu kỹ thuật số thì đã có thể bảo tồn cảnh quan thị trấn.

Đọc dữ liệu PointCloud bằng Revit

Hoàn thiện model

Lập các bản vẽ
JIBANNET ASIA tạo mô hình BIM từ dữ liệu PointCloud và cũng cung cấp dữ liệu CAD có độ chính xác cao.
 
            
 
			 日本語
 日本語 English
 English